【構造・断熱】基礎工事・躯体工事・断熱工事
【外部】ガラスサッシ工事費・屋根板金工事・外壁工事
【内部】内装工事(漆喰・オガファーザー・ナラ無垢・Be wood建具)・空調設備工事・タイル左官工事・電気工事・配管工事・設備設置工事・バス・トイレ(1F、2F)・キッチン
価格が分かる!施工事例個性的な平屋風の外観とナチュラルな北欧スタイル

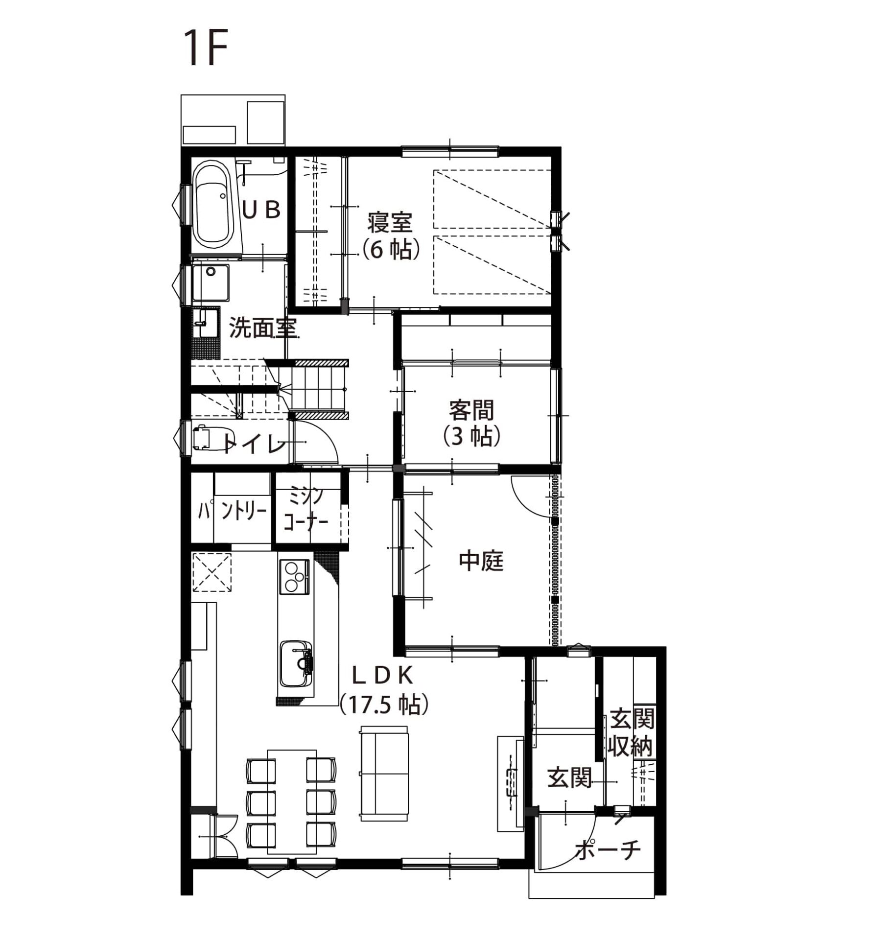
「木造軸組み工法」で建てる
私だけのこだわり住宅



本体価格
2,461
万円
(税抜)
本体価格内訳
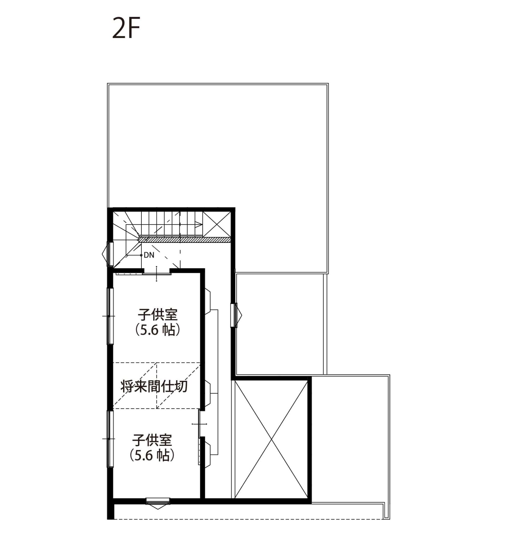
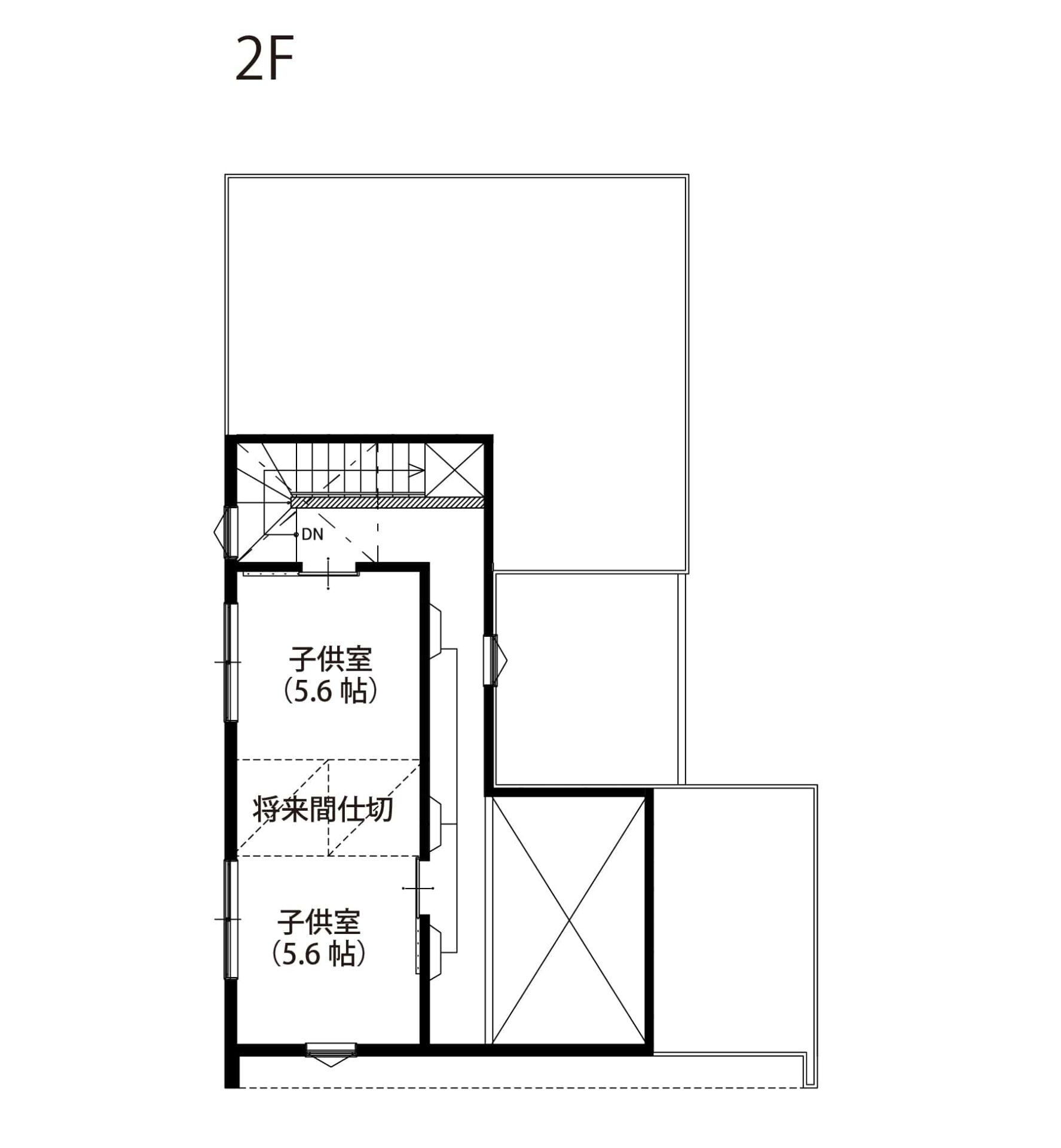
- 1F床面積 74.11㎡(22.42坪)
- 2F床面積 30.6㎡(9.26坪)
- 延床面積 104.75㎡(31.68坪)
- 施工面積 119.66㎡(36.20坪)
TOTAL 諸費用まで全てわかる!家具、照明、カーテン…家一軒いくらかかる?
本体価格
2,461万円(税抜)
+
その他費用※
541万円(税抜)
合計
3,003万円(税抜)
(税込価格3,302万円)
※その他費用541万円内訳
付帯工事必須
203万円
屋外給排水
仮設工事
足場工事
現場管理費
設計料(プラン含まず)確認申請手数料
低炭素認定申請手数料
地盤調査費
地盤保障保険
諸費用必須
90万円
【登記関係】
表示登記・保存登記
登録免許税・抵当権設定登記
移転登記・収入印紙等
【融資関係】
融資手数料・火災保険料(5年分)
収入印紙代
請負契約印紙代
オーナーセレクト
248万円
カーテン・照明器具・エアコン及び取付
キッチン背面収納(カップボード)
キッチン前収納LDKに吹抜け(勾配天井)
棚設置工事
トイレ手洗い器の差額(造作カウンター付)
子供室に勾配天井
洗面台にサイド収納
キッチンにニッチ(マガジンラック)


返済シミュレーション
【大垣共立銀行提携住宅ローン 40年返済】
※2026年3月変動金利 年0.88%(保証料金利上乗せ)
40年間
月々返済
73,326円
ボーナス払い(年2回 49,916円×2回)

















